Objektart
Adresse
Objektdaten
Informationen
Ausstattung
Details
Das charmante Reihenendhaus wurde im Jahr 1936 errichtet und im Laufe der Zeit liebevoll modernisiert. Eine umfassende Sanierung erfolgte 1996 - dabei wurden unter anderem das Dach, die Fenster sowie weitere zentrale Bauteile erneuert. Die Gastherme wurde 2006 ausgetauscht.
Beim Betreten des Hauses empfängt Sie eine gemütliche, offene Wohnküche, die nahtlos in das rund 30 m² große Wohnzimmer übergeht. Hier sorgt ein Kaminofen für behagliche Wärme und ein besonderes Wohnambiente. Der helle Wohnbereich öffnet sich zum gepflegten Garten mit großer, überdachter Terrasse - ein idealer Ort zum Entspannen und Genießen.
Das Haus verfügt über zwei Bäder: ein großzügiges Badezimmer mit Eckbadewanne und Dusche sowie ein weiteres Bad im Untergeschoß, das sich ideal als Gästebad eignet und ebenfalls mit einer Badewanne ausgestattet ist.
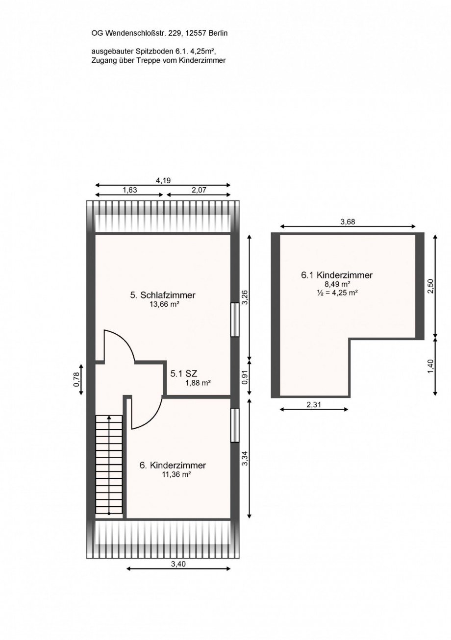
Im Obergeschoss befinden sich zwei Schlafzimmer. Zusätzlich wurde der Giebel ausgebaut und über eine Treppe erschlossen, sodass weiterer Raum zur individuellen Nutzung zur Verfügung steht.
Direkt am Haus angeschlossen ist eine vom Haus aus begehbare Garage, die ausreichend für ein Fahrzeug ist. Darüberhinaus steht die Auffahrt als weitere Parkfläche zur Verfügung.
Dieses Haus ist bezugsfertig und wurde durch den Eigentümer frisch renoviert.
Die Immobilie überzeugt mit einer gut ausgestatteten Einbauküche, sowie einem gemütlichen Kamin, der für eine behagliche Wohnatmosphäre sorgt. Beheizt wird das Haus über eine Gasheizung aus dem Jahr 2006; im Badezimmer sorgt eine Fußbodenheizung für zusätzlichen Komfort. Die Duschkabine wurde gerade erneuert.
Besonders hervorzuheben ist die großzügige, teilweise überdachte Terrasse, die zum Entspannen und geselligen Beisammensein einlädt. Eine Garage sowie eine hochwertige Zaunanlage im vorderen Bereich runden das Angebot ab.
Darüber hinaus ist ein Glasfaseranschluss verfügbar, der modernes und schnelles Arbeiten von zuhause ermöglicht.
Das Haus befindet sich in der verkehrsgünstigen Wendenschloßstraße in Berlin-Köpenick - einem der grünsten und wasserreichsten Stadtteile der Hauptstadt. Hier genießen Sie ein gewachsenes Wohnumfeld direkt an der Dahme, kombiniert mit einer ausgezeichneten Infrastruktur.
Straßenbahn- und Buslinien liegen nur wenige Schritte entfernt, der S-Bahnhof Köpenick ist ebenfalls schnell erreichbar. So gelangen Sie komfortabel in die Berliner Innenstadt. Der Flughafen BER ist über Adlershof oder Rudow in nur ca. 20 Minuten erreichbar, der Hauptbahnhof über den Flughafen-Express in etwa 30 Minuten.
Die Lage verbindet naturnahes Wohnen mit optimaler Anbindung - ideal für alle, die Ruhe, Wasser und Grünflächen schätzen, ohne auf städtische Nähe verzichten zu wollen.
Wir begleiten Sie nicht nur beim Kauf dieser Immobilie, sondern unterstützen Sie auch bei der Wahl einer passenden Finanzierung. Dank unserer Zusammenarbeit mit erfahrenen Finanzierungs- und Bankpartnern können wir Ihnen maßgeschneiderte Lösungen anbieten - individuell auf Ihre Bedürfnisse zugeschnitten.
Zudem stehen wir Ihnen gerne beim Verkauf weiterer Objekte zur Seite - professionell, zuverlässig und mit umfassender Marktkenntnis.
Energieausweis (Verbrauchsausweis)
85,10 kWh / (m²*a) Energieverbrauchskennwert
85,10 kWh / (m²*a) Energieverbrauchskennwert
85,10 kWh / (m²*a) Energieverbrauchskennwert
Weitere Informationen
| Wesentlicher Energieträger | Gas |
| Energieausweis Ausstelldatum | 2025-09-01 |
| Energieausweis gültig bis | 31.08.2035 |
| Energieausweis Jahrgang | ab dem 1.5.2014 |
| Energieverbrauch für Warmwasser | enthalten |
| Energieausweis Werteklasse | C |
| Energieausweis Baujahr | 1936 |
| Energieausweis Gebäudeart | Wohngebäude |
| Befeuerung | Gas |
Ich bin damit einverstanden, dass mir Karten von Google angezeigt werden. Es gelten die Datenschutzbedingungen von Google (https://policies.google.com/privacy).
Ich bin einverstanden